Question 2. Please submit any sites for employment and housing you wish to suggest for allocation in the Local Plan. Provide as much information and supporting evidence as possible.

Showing forms 1 to 30 of 827
Form ID: 40003
Respondent: Mr Lee Bevens

Land west of 20 Station Road Willingham Cambridgeshire

0.6

Site 40003 map

No uploaded files for public display

It currently forms residential curtilage to 22 Station Road and was formerly garden to other dwellings on Station Road.

It is not developed

N/A

Greenfield

Proposed residential development.

Market and affordable housing , Custom or self build housing

Nothing chosen

The proposed site would provide a residential site with connectivity with the approved housing development to the south (off Hadens Way) and the approved housing development to the north (off of Over Road) and allow pedestrians to easier access the facilities within the village of Willingham, whilst providing a broad mix of housing.

The site could accommodate a minimum of 10 dwellings but would be discussed with SCDC to ensure that the density reflects the location but could accommodate up to 20 dwellings.

No uploaded files for public display

Yes (Please give details)

There is a vehicular access from 22 Station Road (one of the landowners) and there is a retained right of way alongside 20 Station Road. An additional access would be required to access this site and it is expected that this would come from the north, via the approved residential development from Over Road.

No

Yes (Please give details)

According to the Environment Agency's flood maps for planning, part of the site is within flood zones 2 and 3 but that could be mitigated in the same way as the approved scheme as Aspinalls Yard to the north and the approved outline planning application north of this site for 26 dwellings off of Over Road. There is the opportunity to mitigate flood risk from surface water by the use of SUDS. No know contamination on the site. There is a badger set on the site, which is currently located in dense bramble and appropriate mitigation would be sought if development is approved.

There are overhead electricity lines nearby and the proposed approved development to the north would allow for key utilities to be provided to the site boundary including water supply, main sewerage, electricity, gas and broadband.

Available now

The site could be delivered for housing at the earliest opportunity

None

We believe that the site has a high market attractiveness as the site is wedged between two approved housing developments and provides a natural pedestrian access potential to connect the scheme to the south with the centre of Willingham

No

N/A

Potentially 2020

Potentially 2020

1

No

N/A

Yes

Form ID: 40004
Respondent: Mrs Diana McCollum

Land behind Low Close, 52 Harlton Road, Little Eversden Cambridge

2.51

Site 40004 map

No uploaded files for public display

Agricultural

Continually used for agricultural purpose

A portion of this field was released for the erection of 10 affordable houses. Planning ref. S/0629/08/F. Decision date 20-11-2008.

Greenfield

Market and affordable housing , Key worker housing

Public open space , Community facilities , Recreation and leisure

As the intention would be to provide a mix of market and affordable housing, low paid individuals to have an opportunity to benefit from rural housing. The site would also lend itself to the provision of public open space.

Based upon the site at Low Close, a minimum of 10 units would be feasible.

No uploaded files for public display

No

Two access locations from High Street, Little Eversden are indicated by yellow dots. Two further access locations from Harlton Road, Little Eversden are also indicated by yellow dots.

No

No

No

The site has access to all the key utilities with the exception of gas.

Available now

The site would be available in September 2019

None

The site is in the same location as a previous affordable housing scheme, which was extremely popular and there has been support for additional projects.

None

N/A

Autumn 2019

Spring 2021

1.5

No

Yes

Form ID: 40007
Respondent: Miss Helen Baker

Haelan Feld Farm Twenty Pence Road, Cottenham Cambs

3.2

Site 40007 map

No uploaded files for public display

Agricultural/horticultural smallholding

S/0115/19/OL - Registration Date:10-Jan-2019 - ongoing HAELAN FELD FARM, TWENTY PENCE ROAD, COTTENHAM, CAMBRIDGE, CB24 8PS Outline planning permission for the erection of 2 dwelllings with all matters reserved. S/3578/18/PA - Registration Date: 26-Sep-2018 Decision Date: 23-Nov-2018 - Approved Application Type: Prior Approval Barns to Dwellings Main Location: Haelan Feld, Twenty Pence Road, Cottenham, Cambridge, CB24 8PS Full Description: Notification for prior approval for a proposed change of use of agricultural building to a dwellinghouse (Class C3) and for associated operational development

Agricultural/horticultural land plus barns

My curent application is for 2 bunglalows but the site could accomodate more. Due to the size of the field at the rear of the property, it would be ideal for custom selfbuilders who wish to keep animals.

Market and affordable housing , Custom or self build housing , Employment (B1c) light industrial , Employment (B2) general industrial , Employment (B8) storage and distribution

Nothing chosen

A small development that would employ local tradespeople and support the local economy of Cottenham.

The site could accomodate upto 5 selfbuild properties with land to the rear.

No uploaded files for public display

Yes (Please give details)

Drive way highlighted on map

No

Yes (Please give details)

the site covers flood zones 1,2 and a small section in zone 3. However the barn conversion was passed as acceptable in Zone 2. Flood report attached.

No

Mains water and electricity have been connected in the past but not currently. No mains sewerage or gas.

Available now

Currently waiting for planning pernission with an aim to sell.

A semi-rural site that is in need of development on the outskirts of Cottenham. A site of this size is not rearly available in this location.

No

Currently in the proccess of trying to obtain planning permission.

2020

2025

5

No

Yes

Form ID: 40010
Respondent: Mr Lee Bevens

Land south and south-east of Ryecroft, Station Road Longstanton Cambridgeshire

3

Site 40010 map

No uploaded files for public display

Paddocks and amenity land to Ryecroft

N/A

S/3167/17/FL, S/2102/18/OL, S/4679/18/RM

Greenfield

Proposed residential development and/or including some B1 use.

Market and affordable housing , Older persons housing , Residential care home , Custom or self build housing , Employment (B1) office , Employment (B1b) research and development

Public open space

Additional local housing close to the guided busway with good public transport links to Cambridge and easy access to the A14. An alternative location to large site of mass housing at Northstowe

Residential development of up to 100 houses and/or small area of startup office units.

No uploaded files for public display

No

A new access would be provided onto Station Road to meet CCC Highway Standards and necessary visibility splays.

No

Yes (Please give details)

Overhead electricity lines for part of the site. Most utilities are available in Station Road.

Available now

Other than the necessary planning application, the site is owned and controlled by one landowner, so could be available as soon as possible.

Enquiries received

A very attractive site, close to the guided busway at Longstanton (access to Cambridge), close to the mixed-use development at Northstowe. Good access to the A14, which is under major re-development.

No.

N/A

2021

2025

4

No

Yes

Form ID: 40011
Respondent: Ms Fran Minnaar

Land east side of Highfields Road, Highfields Caldecote Cambridge

5.213

Site 40011 map

No uploaded files for public display

Agriculture

No

The site could deliver market housing to meet identified need and 40% affordable housing. The site is sustainable and would link to existing public rights of way. There are no significant adverse impacts in developing this site.

Market and affordable housing , Key worker housing , Older persons housing , Residential care home , Employment (B1) office

Public open space , Community facilities , Recreation and leisure , Healthcare

The development is within walking and cycling distance of the new village at Bourn and provides significant economic support for the vitality and viability of the village. The location of the site allows for a choice of modes of transport to access local facilities and services in Cambridge and beyond including London.

Residential development of 140 units with associated open space and landscaping and new infrastructure landscaping. Upgrade existing PROW to expand circular walk.

No uploaded files for public display

No

Full access is available to site with connection rights to services.

No

No

No

Available now

None

It allows sensetive integration between the new development and this site.

The land is unrestricted.

Never previously considered.

2021

2024

3

No

NA

Yes

Form ID: 40012
Respondent: Orchestra Land

Land On The North-East Side Of Long Lane Long Lane

5.29

Site 40012 map

No uploaded files for public display

Agricultural field low grade

NA as site currently used for low grade agricultural

No

greenfield

Residential Development 30 dwellings per hectare gross with play area

Market and affordable housing , Older persons housing , Residential care home , Custom or self build housing , Other forms of housing

Public open space , Community facilities , Recreation and leisure

We will provide local facilities such as allotments, open space, play area as well as an entire range of housing such as traditional housing but also bungalows, custom build, various types of affordable housing including rent, shared ownership and starter homes

158 total residential dwellings indicative. Affordable Housing 40%-64 units Private Housing mix of 2 storey/ bungalows/ self build- 94 units

No uploaded files for public display

Yes (Please give details)

The two black crosses illustrate the two access points. Site lines have been checked and are sufficient for residential development

No

The site we have included within the call for sites is outside the flood zone. We have excluded the flood zone from our call for sites submission as this area is un-developable. The site we have included has no constraints

No

As above we excluded the area that flooded from our call for sites, the 5.29HA is all outside of the flood zone. The landowner has explained the land has not flooded for circa 40 years and a drain was inserted to mitigate flooding, though we've excluded this area we will be working with the Environment Agency to amend the flood maps too.

No

We have access to all utilities and capacity. No utility constraints

Available now

Land is available now

Site is under option by a developer

Very strong housing market. This settlement is desperate for new housing with a good mix of various housing such as affordable/ bungalows/ custom self build. We are in discussions with the South Cambs self build leader Mr Laurence Castle to discuss a portion of our site for this use too

No legal issues all confirmed okay by solicitors

NA

December 2020

December 2022

3 years

No

No issues

Yes

Form ID: 40013
Respondent: CODE Development Planners Ltd

Horseheath Road Linton Cambridgeshire

1.11

Site 40013 map

No uploaded files for public display

the previous state was Arable Land - the current use is now paddock / scrub

No answer given

• Reference S/3405/17/OL Type: Outline Planning (Small Major) Location: Land south of Horseheath Road, Linton Description: Outline planning application with all matters reserved for up to 42 dwellings and not less than 0.4ha of allotments, with associated open space and sustainable drainage Decision: Decision Date: ________________________________________ • Reference:S/1969/15/OL Type: Outline Planning (Small Major) Location: Horseheath Road, Linton, Cambridgeshire, CB21 4JT Description: Outline planning application with all matters reserved for up to 50 dwellings and allotments (not less than 0.45 hectares) Decision: Refused Decision Date: 13-06-2016 ________________________________________ • Reference:S/2553/16/OL Type: Outline Planning (Small Major) Location: Horseheath Road, Linton, Linton, Cambridgeshire, CB21 4JT Description: Outline planning application with all matters reserved for up to 50 dwellings and allotments (not less than 0.45 hectares) Decision: Refused Decision Date: 28-03-2017

Previously the site is arable land and now is greenfield

Residential

Market and affordable housing

Nothing chosen

The site could provide for housing for local resident and an attractive gateway to the built environment of the village. If it were deemed appropriate it could be developed out at the same time of the adjacent development thus causing the minimum disruption for Linton residents. There is also benefits in considering this development at this time in terms of provisions of footpaths into the village centre and amenities and to the East to the main transport links.

20-25

No answer given

No uploaded files for public display

Yes (Please give details)

No answer given

No

No answer given

No

No answer given

No answer given

No

The site has access to all key utilities through an agreement with the developers of the adjacent site. The arrangement with the developers of the adjacent site has made allowances for the increase in capacity that would be required for this potential development. There are national grid electricity poles running down the eastern boundary of this site.

Available now

The site is part of a larger land parcel which has been granted permission for residential development. Our interest in this field whilst it is accessible to the public highway it does not represent a viable arable field since it would now be too small for modern agricultural operations.

Enquiries received

Two similar sites have recently been sold in linton with permission for residential development. Croudace are about to start developing the rest of the site, there is no clearly defined boundary between the two sites

Nothing chosen

No answer given

No answer given

2020

2022

2

No

No answer given

Yes

Form ID: 40014
Respondent: Palm Land and Development

Oakington Road Oakington Road Cambridgeshire

0.524

Site 40014 map

No uploaded files for public display

Residential dwelling, garden, existing garage/former packing shed and siting of former greenhouses

N/A

RC/0241/59/ Erection of dwelling house and garage

Mixture of residential dwelling, garden land, existing garage/former packing shed and siting of former greenhouses

Residential

Market and affordable housing

Nothing chosen

Provision of additional residential dwellings will provide employment for construction and associated services in the short term and future occupiers will support local services.

The site measures 0.524ha. Using a similar density as surrounding sites this could accommodate up to 14 dwellings.

No uploaded files for public display

Yes (Please give details)

There are two existing access points. Either of these would need modest improvements to enable the development

No

N/A

No

N/A

No

1. Mains water, electric and sewers are in the verge or road across the frontage of the site 2. We understand that gas is being brought to the housing development site at the rear of this site and this is likely to be in the road/verge across the frontage of this site 3. Telephone / broadband is available 4. The site is not crossed or adjacent to a pipeline and/or pylon

Next 5 years

Discussions with the owners indicate that the site could be made available within the next 5 years.

Site is under option by a developer

The site is surrounded on three sides by residential development land - land to the north-east is under construction and land to the north-west/south-west is recently had the reserved matters approved.

None

N/A

2024

2026

2

No

N/A

Yes

Form ID: 40015
Respondent: mr Chris Buxton

Land fronting onto Church Road, Little Wilbraham, CB21 5LE

0.26

Site 40015 map

No uploaded files for public display

grass land sheltered by hedges and trees

n/a

None known

Greenfield

Use for residential purposes

Market and affordable housing , Key worker housing , Older persons housing , Custom or self build housing

Nothing chosen

The development would assist in connecting the 2 distinct and separate areas of the Village of Little Wilbraham

6 Detached houses with gardens to be served by a private road with a new access onto Church Rd.

No uploaded files for public display

No

The new access road would be in the approx centre of the site.

No

No

No

All the services are available in Church Rd.

Available now

Enquiries received

High

No

N?A

2020

2021

1

No

N/A

Yes

Form ID: 40016
Respondent: Mr Lee Bevens

Land west of New Farm, Station Road Longstanton Cambridgeshire

3.1

Site 40016 map

No uploaded files for public display

paddocks and farmland

N/A

N/A

Greenfield

Proposed residential development with consideration given to an area of employment to create a viable development

Market and affordable housing , Key worker housing , Older persons housing , Residential care home , Custom or self build housing , Employment (B1) office , Employment (B1b) research and development , Employment (B1c) light industrial

Public open space

Sustainable housing development, close to good public transport and the improved A14. Useable public open space S106 contributions/CIL to the local area Potential to provide a mixed use development with housing and employment. Alternative housing location to Northstowe.

Potential to offer approximately 100 dwellings with necessary public open space, sustainable drainage solutions and some employment if deemed suitable to allow residents to work close to home. Alternative housing opportunities could be explored, subject to further discussions and suitable viability.

No uploaded files for public display

Yes (Please give details)

The existing access is identified on Drawing Number CH19/LBA/503/CFS-1-100 and would need to be improved or re-located along the site frontage to suit development on the site. Good visibility splays are achievable in both directions.

No

Yes (Please give details)

There are overhead electricity cable running from across Station Road to New Farm. This could be moved underground as part of development proposals. There is a BT overhead line on the southern boundary of the site. This could be moved underground as part of development proposals. Other services are provided in Station Road.

Available now

If the site was approved for development then apart from the necessary documents and drawings to form an application then the site has no time constraints or legal constraints.

None

The site has a good level of market attractiveness, with the close proximity of the guided busway and the on-going improvements to the A14 and close proximity of Cambridge. It also has the opportunity to offer a better quality/alternative of housing to Northstowe.

None that we have been made aware of.

N/A

2022

2026

4

No

We would not expect there to be any abnormal costs, which a developer would not expect to fin on this type of site.

Yes

Form ID: 40017
Respondent: Ms Fran Minnaar

Land east side of Highfields Road Highfields Caldecote, Cambridge

5

Site 40017 map

No uploaded files for public display

Agriculture

Greenfield

The site could deliver market housing to meet identified need and 40% semi-sheltered affordable housing with different (non-market) housing tenures to create a mixed and balanced community. The site is sustainable and would link to existing public rights of way. There are no significant adverse impacts in developing this site. Village has infrastructure required to support housing delivery. The site would be close to proposed transit systems on the A428 into Cambridge. Site is within walking/cycling distance of new employment opportunities proposed at the village of Bourn and Cambourne.

Market and affordable housing , Key worker housing , Older persons housing , Residential care home , Employment (B1) office

Public open space , Community facilities , Recreation and leisure , Healthcare

The development is within walking and cycling distance of the new village of Bourn and will provide significant economic support for the vitality and viability for the village of Caldecote. The location of the site allows for the choice of modes of transport to access local facilities and services in Cambridge and beyond including London.

Residential development of 180 units with associated open space and landscaping and new infrastructure landscaping. Upgrade existing PROW to expand circular walk/bridleway.

No uploaded files for public display

Yes (Please give details)

The land to the west of this site was in the same ownership as the subject land. This land now has planning and has since been sold to Linden Homes. In the deal there is a provision that Linden provide access to the subject land from the Highway. Since the original representations were made to South Cambs, a deal has now been done to Linden Homes and they now have an option over the subject land.

No

No

No

Linden Homes have to provide all services to the boundary of the subject land. This will include all major services and fibre. The site is not crossed by any utilities either pipelines or pylons.

Available now

None

It allows sensitive integration between the recently consented development and this site.

The land is unrestricted.

Never previously considered.

2021

2024

3

No

N/A

Yes

Form ID: 40018
Respondent: Cambridge Meridian Academies Trust

North Cambridge Academy, Arbury Road, CB4 2JF Cambridge Cambridgeshire

2

Site 40018 map

No uploaded files for public display

The land is used for over spill car parking which can be relocated, some of the area has Bellerbys Cambridge College on which lease is coming to and end and the building is be looked at for this type of development and the final part is landscaping for the Academy this is not used for sports or PE.

The lease for Bellerbys Cambridge College expires next year and is on land owned by NCA/CMAT.

N/A

N/A

Housing for key worker or other, to use the income to support to developing the Academy site to increase both the site itself and community use facilities.

Market and affordable housing , Key worker housing

Schools and education , Public open space , Community facilities , Recreation and leisure

Improvement to Community facilities, housing for key workers or such like and and improvement to the Academy for Education.

We believe there is the enough for at least 15-20 residential units.

No uploaded files for public display

Yes (Please give details)

The site can be access directly off Arbury Road - this will need to be reviewed and expanded. Currently this give access to a car park from the main road.

No

Yes (Please give details)

The site is located on the Academy site, so has access to all utilities. This may need reviewing.

Next 5 years

Lease on Bellerbys building finishes next year.

Don't know

Location is ideal for key worker housing with the development of the area. The Academy will need to increase in capacity meaning a more staffing opportunities.

N/A

N/A

2020

2022

2

No

Yes

Form ID: 40019
Respondent: Mr Andrew Parkinson

Land adjoining Tadlow House , Tadlow Royston

8

Site 40019 map

No uploaded files for public display

Agricultural

No answer given

No answer given

No

Housing development . Houses with space for gardens . Mixed housing , for first time buyers , or families , special houses for older people , some larger houses and a village hall for recreation of existing villagers and new houses .

Older persons housing , Other forms of housing

Public open space , Community facilities , Recreation and leisure

Mixed size houses as one would find in a village setting.

80 to 120 at 4 to 6 per acre - reduced appropriately for any open space and village hall.

No answer given

No uploaded files for public display

Yes (Please give details)

Farm access at point marked X on map , on a stretch of straight road . A wider access would be needed for this development,

Yes (please give details)

Gentle slope.

No

No answer given

No answer given

No

Utilities would have to be installed.

Next 5 years

No answer given

Enquiries received

Little while under current planning constraints.

No

1. Footpaths. 2. Farm Business Tenancy. 3.Pre-emption rights to adjoining house-owner.

No answer given

2030

2035

5

No

No answer given

Yes

Form ID: 40020
Respondent: Mr Michael Sharp

Site adjacent to Walnut Tree Close on East side of North End, Bassingbourn North End, Bassingbourn Heets

3.16

Site 40020 map

No uploaded files for public display

Agricultural land

No previous planning applications made

Greenfield

Residential development within village envelope of affordable and market housing

Market and affordable housing , Key worker housing , Older persons housing , Residential care home

Public open space , Community facilities

Development can provide public open space (e.g. playground), affordable housing for local people, possible accommodation for older residents and/or key worker housing

Estimate realistic of 45 housing units including public open space

No uploaded files for public display

Yes (Please give details)

Site fronts onto public highway. Road junction required as part of build

No

Yes (Please give details)

Site has access to sewerage, water, electricity, broadband internet. Note that Bassingbourn not on national gas network CLH PS pipeline runs diagonally across site from west to east.

Available now

Site is arable farmland and previously identified for development by SCDC

Enquiries received

Proposal from developers and promoters such as Orchestra Land

No

Not applicable

2020

2021

2

No

Yes

Form ID: 40021
Respondent: Mr Michael Sharp

Land opposite New Close, Litlington Bassingbourn Rd, Litlington, Royston Herts

3.65

Site 40021 map

No uploaded files for public display

Arable farmland

Not applicable

None

Greenfield farmland on the edge of Litlington village opposite New Close, 1950's housing development

Mixed development of 50 market and affordable housing plus parking for houses on Bassingbourn Rd who have insufficient offstreet parking which causes a nuisance for other residents by double parking

Market and affordable housing , Key worker housing , Older persons housing , Employment (B1) office , Employment (B1b) research and development , Employment (B1c) light industrial , Employment (B2) general industrial , Employment (B8) storage and distribution

Public open space

Landowner would like to offer parking spaces to residents of New Close who currently have insufficient offstreet parking and are forced to double park on Bassingbourn Rd causing a nuisance

50 houses of mixed market and affordable houses. Given the development at New Cambridge House of offices and a logistics centre, would also consider light industrial use

No uploaded files for public display

Yes (Please give details)

Site fronts onto Bassingbourn Rd. Would require new junction being built to give vehicle access

No

Yes (Please give details)

Site has access to sewerage, electricity, water and broadband internet. No other services cross this land

Available now

Site is arable farmland and can be developed at any time

Enquiries received

Developers such as Orchestra Land have offered to promote this site for residential development

No

None

2020

2021

2

No

Yes

Form ID: 40022
Respondent: Mr Lee Bevens

Land at 16 High Street (Yew Tree Farm) Harlton Cambridgeshire

0.75

Site 40022 map

No uploaded files for public display

Redundant grain store and associated buildings and grassland with trees

Grain storage

N/A

A mixture of previously developed land and greenfield.

Proposed residential development

Market and affordable housing , Custom or self build housing

Public open space

The proposed site would see the removal of the redundant grain store and associated buildings, which would provide a much improved appearance in the village, together with additional housing in the village to suit demand. Where possible existing trees would be retained and a much improved 'Countryside Frontage' would be proposed.

Overall housing numbers would be negotiated with SCDC but would reflect the immediate context and not look to over-develop the site but the site could see a development between 10-20 dwellings.

No uploaded files for public display

Yes (Please give details)

There is an existing vehicular access from the High Street, which would need to be improved to serve the development. The existing access has been used by heavy goods vehicles and heavy machinery associated with the grain store.

No

There is a slope form the southern boundary to the northern boundary. The site is currently within the Harlton Conservation Area.

Yes (Please give details)

No abnormal issues known of. There are trees on the site. The site is currently within the Harlton Conservation Area.

No

There are services immediately available in footpaths and roads including mains drainage, water and electricity.

Available now

If the site is considered acceptable for development, then the site could become available immediately, with the existing grain store being demolished as necessary.

None

The site has a high market attactiveness, with its location in the centre of the village and good transport links to Cambridge and other service centres and would suit both small and medium sized developers as well as self-build.

No

N/A

2020

2022

2

Yes

There is the demolition of the existing grain stores and buildings to consider but subject to an appropriate contamination review, some of the materials could be used as hardcore etc in the building process. Existing steel columns/portal frames could be salvaged and re-used.

Yes

Form ID: 40023
Respondent: Welding Alloys Ltd

The Way Fowlmere Herts

2.35

Site 40023 map

No uploaded files for public display

The site is a mixture of industrial buildings, 90% of them empty as the original industrial activity is no longer taking place on the site. There is a small number of office employees who will be relocated.

The site is developed, the last industrial activity occurred over 2 years ago.

A planning application was previously submitted to develop the site for residential purposes. S/1213/16/OL

Previously developed, brownfield.

The site would be changed to residential housing, with a total of 45 units. The site would also include an office building of 2,198 sq ft at the entrance to the site for upto 20 people. This may be suitable for Welding Alloys existing administrative personnel.

Market and affordable housing , Employment (B1) office

Public open space

The development will provide access to public open green spaces and a children's play area. The additional population will help sustain the local pubs and restaurants in the village.

45 residential units, based on housing density guidelines for the development area - a gross density of 21 units per hectare. A full scheme has already been developed for the entire site. Office unit of 2,198 sq ft to accommodate upto 20 people.

No uploaded files for public display

Yes (Please give details)

Vehicular access into the site exists at present (The Way) and this adequately serves the existing industrial site. Following a request from the Local Highway Authority (Cambridgeshire County Council) it is proposed to modify the existing access slightly in order to provide an enhancement to visibility for users. A Transport Statement submitted to the Council demonstrate that the development of up to 45 residential units and office space can be safely accommodated by the proposed access and that it should not result in a detrimental impact on the existing operation of the highway network in this location.

No

No

A detailed Flood Risk Assessment (which includes the results of detailed hydraulic modelling of the nearby watercourse) supports the planning application and demonstrates that the proposed development will not be at significant risk of flooding and that neither will it significantly increase the risk of flooding elsewhere.

No

The site is supplied with all the key utilities of mains water, mains sewerage, electricity and broadband internet. There is no mains gas in the village of Fowlmere.

Available now

The personnel currently employed on the site are able to move to another office location at short notice.

Site is being marketed

Low. The buildings are all of different ages, and different construction types and some are in need of repairs. The buildings were built and designed around the very specific needs of the manufacture of cored welding wire, a specialised industrial activity, as well as the welding services of heavy industrial plant and machinery.

None.

No.

2021

2023

2

Yes

The soil on the site will need to be tested to ensure there is no soil contamination from previous industrial activity. To date the results have returned no findings of soil contamination. The old buildings will need to be demolished and all asbestos roofing removed by a specialist contractor. The site will need some groundworks to level the ground.

Yes

Form ID: 40024
Respondent: Mr Lee Bevens

Land south of Whitehall Farm Arrington Cambridgeshire

4.36

Site 40024 map

No uploaded files for public display

Farmland

N/A

N/A

Greenfield

Proposed employment use

Employment (B1) office , Employment (B1b) research and development , Employment (B1c) light industrial , Employment (B2) general industrial , Employment (B8) storage and distribution

Nothing chosen

Provide an employment site in the district with good immediate road connections

The overall size of the units would be subject to further discussions with the Local Authority and number of units would be influenced by various reports including transport statements etc.

No uploaded files for public display

No

A new access road would be created from the B1042 into the site ensuring suitable visibility splays were provided.

No

No

No

Nearby utilities are available and appropriate provision would be made for key utilities to serve the development.

Available now

The land is currently farmed but is available to change to development land immediately.

None

The site offers a good opportunity for employment use, close to major roads serving the wider context and still relatively close to large built up areas including Royston (4 1/2 miles), Biggleswade (9 miles) and Cambridge (10 miles)

No

No

2021

2025

4

No

Yes

Form ID: 40025
Respondent: Mr Ben Banks

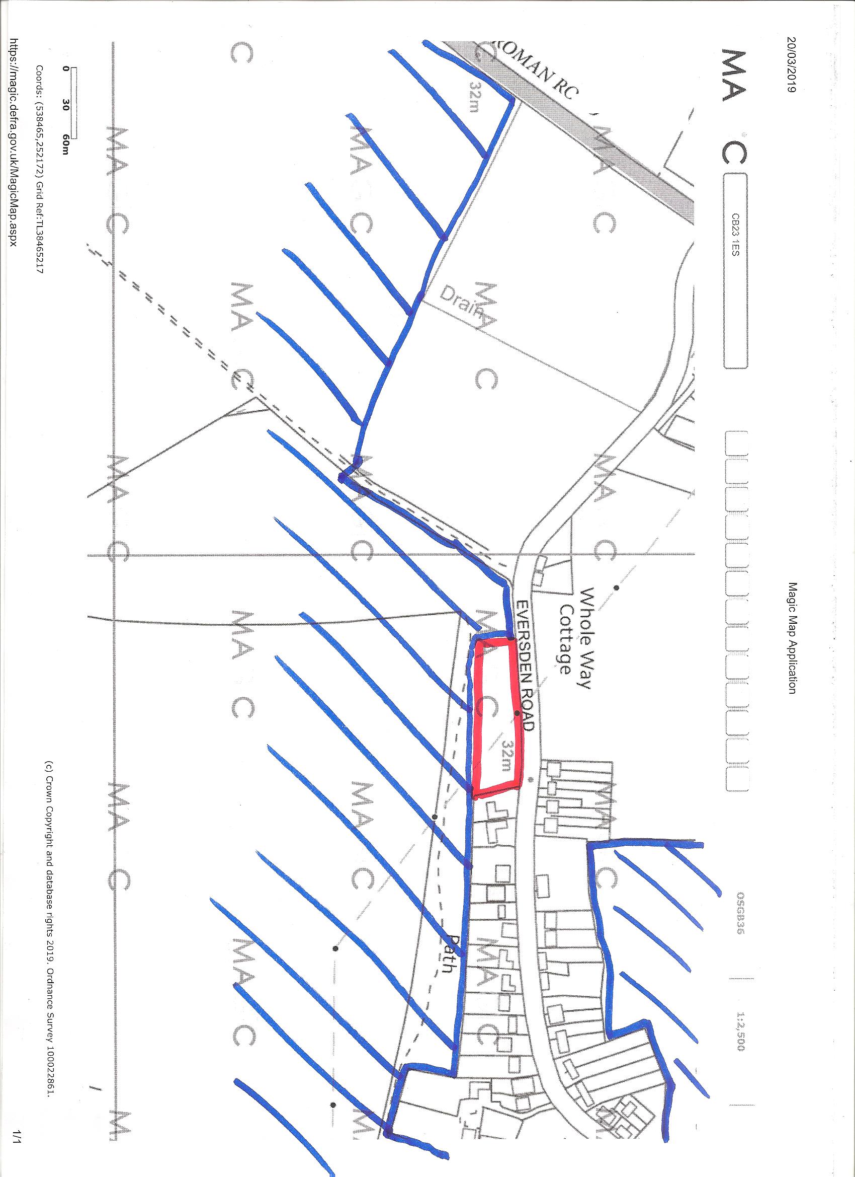
Eversden Road Harlton Cambridge

0.4

Site 40025 map

No uploaded files for public display

Grass, Cattle grazing.

Greenfield.

Custom or self build housing

Nothing chosen

Increased number of clientele for the local pubs, restaurant and church and more students for the primary school.

5 or 6 self build dwellings.

No uploaded files for public display

Yes (Please give details)

driveways onto Eversden road

No

Yes (Please give details)

overhead power cable passes over site.

Available now

we own the site and own & control the business that has the tenancy of the site.

None

We have been asked for self build sites on our land.

no

2020

2022

2

No

Yes

Form ID: 40026
Respondent: Mr Lee Bevens

Lan east of Leetes Lane Little Eversden Cambridgeshire

2.65

Site 40026 map

No uploaded files for public display

Farmland

N/A

N/A

Greenfield

Proposed residential development

Market and affordable housing , Custom or self build housing

Public open space

Provision of residential dwellings in the village offering a mixture of sizes and tenures with the opportunity to provide some open space and integration with the public footpath 24 and 25.

Number of dwellings would be subject of further discussions with the Local Authority.

No uploaded files for public display

Yes (Please give details)

Vehicular and pedestrian access already exists from Leetes Lane and this will have an impact on the overall number of dwellings

No

No

No

The site has access to key utilities but a thorough investigation of utilities and capacities would be carried out, should the site move forward.

Available now

Existing farmland, which could be stopped to allow for residential development.

None

The site offers a very good location in a village close to Cambridge, with the opportunity to provide a mixed range of housing to suit local need.

Existing public footpaths 24 and 25 cross the site, but could be integrated/re-routed in the site with the opportunity of new housing offering passive surveillance with active frontages.

N/A

2021

2024

3

No

N/A

Yes

Form ID: 40027
Respondent: Mr Lee Bevens

Land south of Wimpole Road Great Eversden Cambridgeshire

2.42

Site 40027 map

No uploaded files for public display

Farmland

N/A

N/A

Greenfield

Market and affordable housing , Custom or self build housing

Public open space

The proposed development could provide much needed housing to the village and additional community benefits by the provision of open space and S106 contributions as required.

The number of dwellings would form part of future discussions with the Local Authority to ensure a density commensurate with the location.

No uploaded files for public display

Yes (Please give details)

Existing vehicular and pedestrian access from Wimpole Road. This would need to be either improved or closed off and a new access position provided along the site frontage.

Yes (please give details)

The site slopes from the south-western boundary to the north-eastern boundary.

Yes (Please give details)

Access to utilities are available in Wimpole Road, but a full appraisal of utilities and their capacity would be undertaken should the site go forward.

Available now

There are no reasons for the site not to come forward as soon as the site can be agreed for development

None

The site is in a popular village, close to good access to Cambridge and other service centres

No

No

2021

2024

3

No

Yes

Form ID: 40028
Respondent: Mr Lee Bevens

Land west of Church Street Haslingfield Cambridgeshire

0.51

Site 40028 map

No uploaded files for public display

Farmland

N/A

S/0026/82/O S/0974/84/O

Greenfield

Proposed doctor's surgery with five flats above.

Market and affordable housing , Employment (B1) office , Employment (other)

Healthcare

The proposed site could provide a new doctor's surgery to suit local demand with low cost housing above to offer a sustainable solution.

Five flats above the surgery. No specific designs have been proposed at this stage and would form part of future discussions with doctor's surgery owners and local authority.

No uploaded files for public display

Yes (Please give details)

There is already an access onto Church Street which would need to be improved as part of the works. Visibility splays are achievable in both directions.

No

No

No

All mains services are located in Church Street.

Available now

The site is a small piece of farmland, which could be cleared and prepared for the proposed use, allowing the site to be ready should the site go forward.

Enquiries received

Very attractive. The site offers a well located position in Haslingfield for a new doctors surgery to cope with local demand.

No

N/A

2021

2022

1

No

N/A

Yes

Form ID: 40029
Respondent: Bryant Land & Property

Land at Sheene Manor, Station Road Meldreth, Royston Cambridgeshire

1.8

Site 40029 map

No uploaded files for public display

Former woodland trees felled with felling licence as due to their age wind blow was making them dangerous, now bareland

N/A

N/A

Greenfield

Residential development of circa 25- 30 units

Market and affordable housing , Older persons housing

Public open space

Much needed market and affordable homes within easy access to Meldreth Station

Approximately 25-30 dwellings

No uploaded files for public display

Yes (Please give details)

There is access from frontage to Station Road

No

Yes (Please give details)

The site is located in Environment Agency Flood Zone 1 an area of low probability of flooding A sound survey has been carried out due to proximity to A10 which confirmed that this need not act as a constraint to development The site is located a short distance from Sheene Manor a listed building but is separated by gardens and grounds and tree belts

The site is on the edge of the Settlement of Meldreth and is anticipated has good connections to existing infrastructure.

Available now

The site is vacant and available

Enquiries received

Highly attractive- Meldreth is a sought after, well connected village with a number of existing local facilities to service the community. Good access to A10 and further road network. The mainline station of Meldreth is walking and cycling distance from the site and gives good access to Cambridge, Royston and London

NO

N/A

Start of 2020-2021 dependent on allocation

2-3 years

2022-2024

No

N/A

Yes

Form ID: 40030
Respondent: Wheatley Group Developments Ltd

Land to the West of Elizabeth Way Gamlingay Cambridgeshire

1.54

Site 40030 map

Fallow field.

Market garden. It has been left fallow since 2011.

There is no known past relevant planning application for this particular site.

Previously used as a market garden.

Residential development scheme with associated infrastructure.

Market and affordable housing

Nothing chosen

Redevelopment of this unused land, utilising the existing adjacent infrastructure, will provide new homes to this part of Gamlingay.

Circa 55 dwellings: 33 market housing for sale and 22 affordable homes.

No uploaded files for public display

No

The land will be accessed from the adjoining Elizabeth Way. Please see the two "X's" marked on the redline location plan.

No

No

No

The site is located adjacent to Elizabeth Way, all services will be accessed from this road.

Available now

The land is immediately available for residential development.

Site is under option by a developer

The site is immediately available for development and adjacent to an existing residential development.

Not applicable

2020

2022

2

No

Yes

Form ID: 40031
Respondent: Mrs Rhiannon Pow

College Farm Barrington Road Foxton Cambridge

1.1

Site 40031 map

Domestic housing

No answer given

S/0804/03/F Extension and 2 Dormer Windows - College Farm, Barrington Road, Foxton, Cambridgeshire; S/1223/98/F Extension to dwelling and conversion of adjacent barn into annexe - College Farm, Barrington Road Foxton, Cambridgeshire; S/1656/94/F Caravan Storage - Collge Farm, Barrington Road, Foxton, Cambridgeshire S/2048/88/O Change of use to caravan storage - Collge Farm, Barringotn Road, Foxton, Cambridgeshire; S/0802/81/F Agricultural Access - Adjacent Collge Farm, Barringotn Road, Foxton, Cambridgeshire; SC/0131/50 College Farm, Foxton, Cambridgeshire

Developed land and brownfield

A mixture of market and affordable housing, including bungalows which have been identified as a priority in the village plan process. The option also exists for using the site for business (B1 and B1b) which a site opposite has recently had a change of use for.

Market and affordable housing , Key worker housing , Older persons housing , Custom or self build housing , Employment (B1) office , Employment (B1b) research and development

Nothing chosen

It would meet specific local housing needs as identified in the Village Plan process.

This site could accommodate up to 30 new dwellings according to recent guidelines. A lower density could also be achieved depending on local infrastructure plans. For business use, the 1.1 hectare site could accommodate office space of up to 2500 square metres. The site opposite has similar office spaces and intends to employ up to 70 people (Planning reference: S/4569/17/FL).

No answer given

No uploaded files for public display

Yes (Please give details)

Wide vehicular access is situated on the north east side of the site, directly on to Barrington Road.

No

No answer given

Yes (Please give details)

No answer given

No answer given

No

Mains water, mains sewerage and electricity are connected. There is no gas supply currently along Barrington Road. Oil is used by most properties for central heating purposes. There is high speed fibre optic broadband coverage. There are no pipelines or pylons.

Next 5 years

The site could become available immediately for development.

Enquiries received

A very attractive site within 400yds of Foxton Station where half hourly trains go to/from Cambridge and London King's Cross. There is easy access onto the A10 and the M11 is 8 miles away. Foxton Primary School is 0.9 miles away with the Post Office and local shop 0.7 miles away en route to the school.

No

Trinity College, Cambridge have a restrictive covenant on the site but we have already negotiated a partial lifting of this.

No answer given

2022

2024

2

No

No answer given

Yes

No uploaded files for public display

Form ID: 40032
Respondent: Pelham Structures

110 Cinques Road Gamlingay, Sandy

3.13

Site 40032 map

No uploaded files for public display

Pony Paddock

No answer given

No answer given

greenfield

The site is considered to primarily be suitable for residential development from 7-40 dwellings depending on how much of the site is developed. It would also be suitable for low impact .employment uses such as B1 and B8

Market and affordable housing , Older persons housing , Residential care home , Custom or self build housing , Employment (B1) office , Employment (B1b) research and development , Employment (B1c) light industrial , Employment (B8) storage and distribution

Public open space , Community facilities , Healthcare

No answer given

The site has potential to provide 7 properties along Cinques Road, as shown on the illustrative layout enclosed. There is also scope to develop the additional paddock area behind, highlighted in Blue, which at a medium low density could provide circa 40 dwellings.

No answer given

No uploaded files for public display

Yes (Please give details)

An additional access/s would need to be created as shown on the illustrative layout.

No

No answer given

No

No answer given

No answer given

No

No answer given

Available now

The site is available and a developer involved.

Site is under option by a developer

Strong, it is a relatively unconstrained site in a desirable location.

No

12 months following allocation

Dependent on scale. Smaller scheme 24 months following allocation

1.

No

No

No uploaded files for public display

Form ID: 40033
Respondent: Pelham Structures

Land West of Hardwick Road, Toft Cambridge

1.6

Site 40033 map

No uploaded files for public display

Grazing of livestock

S/3253/17/FL: 30 Dwellings together with associated garaging, parking, public open space, landscaping, access, highways drainage and infrastructure works.

greenfield

Circa 30 residential dwellings or employment use.

Market and affordable housing , Older persons housing , Residential care home , Custom or self build housing , Employment (B1) office , Employment (B1b) research and development , Employment (B1c) light industrial , Employment (B8) storage and distribution

Recreation and leisure , Healthcare

30 residential dwellings or circa 40,000sqft of employment use.

No uploaded files for public display

No

See indicative layout

No

No

No

Available now

Site is under option by a developer

Strong the site is unencumbered and in a desirable location.

no

no

12 months following allocation

Dependent on scale. Smaller scheme 36 months following allocation

2

No

No

No uploaded files for public display

Form ID: 40034
Respondent: Mr Rae Littlewood

Between 144-146 Histon Road Cottenham, Cambridge

0.6

Site 40034 map

No uploaded files for public display

Alpine plant nursery

PRE/0130/17 Prior approval granted S/0763/18/FL Refused S/3003/18/FL Approval granted S/4675/18/OL Refused

Brownfield nursery site covered in glasshouses, polythene tunnels and frames for plant production

Small number of high quality family homes.

Market and affordable housing , Custom or self build housing

Nothing chosen

High quality family homes.

Maximum 6 detached four bedroom houses.

No uploaded files for public display

No

Clear access to site from B1049 - Histon Road, Cottenham

No

No

No

Current services - Mains water, three phase electricity, telephone.

Available now

Currently used for plant production but could be terminated if alternative use was granted.

Don't know

Perfect site for housing development within Cottenham village.

None

September 2020

September 2022

Two years

No

Yes

No uploaded files for public display

Form ID: 40035
Respondent: Mr Alan Huddleston

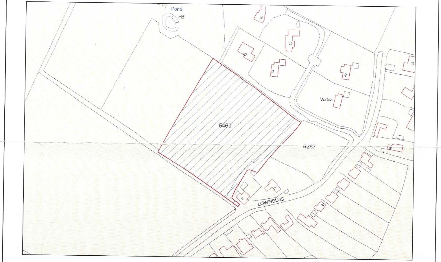
Land adjacent to 9 Lowfields Little Eversden Cambridge

1

Site 40035 map

No uploaded files for public display

Unused pasture

Greenfield

The land would allow the building of between approximately 5 to 20 properties. The land is surrounded on two sides by existing housing and could be used to provide much needed housing without unduly changing the character of the village. The houses could include low cost and key worker housing with the possibility of self-building as well.

Market and affordable housing , Key worker housing , Custom or self build housing

Public open space , Community facilities

The villages of Great and Little Eversden are close to Cambridge and also the road and rail network to other centres of work including London. The villages currently have very few facilities and it has been suggested if the villages were a little bigger then it would be easier to justify getting additional facilities including bus services. This particular piece of land would blend into the current village envelope and allow the possibility to allow low cost house or residencies for key workers. It would also be an ideal opportunity for self-build. Given the space, it would be possible to blend the housing with some open space to retain it's rural character.

The land lends itself to a number of profiles from 5 to 10 houses with plenty of green communal or public space to a more dense population of 20 houses with a mix of inhabitants.

No uploaded files for public display

Yes (Please give details)

There is access directly from Lowfields onto the land. There are also possibilities (subject to other landowners permission) to add further access points, including another paddock adjoining this field that is already within the current village envelope.

No

Yes (Please give details)

Electricity lines supported via poles pass over the property, mains drainage and water is also available from Lowfields.

Available now

The land is currently unused and has been for the last 15 years or so, being kept to grass.

Enquiries received

We have received interest from two development organisations.

No

2022

2025

3

No

Yes

No uploaded files for public display

Form ID: 40036
Respondent: Ms Fran Minnaar

Land off Fenny Lane, Meldreth, Cambridge

4.127

Site 40036 map

Agriculture

Greenfield

The site could deliver market housing to meet identified need and 40% semi-sheltered affordable housing with different (non-market) housing tenures to create a mixed and balanced community. The site is sustainable and would link to existing highways and public rights of way. There are no significant adverse impacts in developing this site. Village has infrastructure required to support housing delivery. The site would be close to proposed transit/rail systems all associated with the east-west rail link. Site is within walking/cycling distance of employment opportunities and the centre of the village.

Market and affordable housing , Key worker housing , Older persons housing , Residential care home , Employment (B1) office

Public open space , Community facilities , Recreation and leisure , Healthcare

The development is within walking and cycling distance of the village centre and will provide significant economic support for the vitality and viability for the village of Meldreth. The location of the site allows for a choice of modes of transport to access local facilities and services in Cambridge and beyond including London via existing rail links and the A10 trunkroad.

Residential development of 100 units with associated open space and landscaping and new infrastructure landscaping. Upgrade existing PROW to expand circular walk/bridleway.

No answer given

No uploaded files for public display

Yes (Please give details)

Full access is available to site with connection rights to services. A revised site location plan is provided with this response, to include the existing site access off Fenny Lane at the eastern boundary of the site that would provide a secondary access for the promoted development. As set out above, the existing site access from Fenny Lane at the eastern boundary is included within the proposed development to provide a secondary means of access. The proposed main access for the proposed development would be adjacent to No.12 Fenny Lane. It is agreed that the existing footways along Fenny Lane should be upgraded as part of the proposed development to provide suitable pedestrian routes to the services and facilities within the village. An assessment of the access arrangements will need to be undertaken to demonstrate that a safe and suitable access can be created to serve the promoted development.

No

No answer given

No

A very small part of the site is subject to flood risk, and this is associated with the watercourse (Whaddon Brook) located on the western boundary of the site. The watercourse would be retained and enhanced as part of the promoted development. A drainage strategy would be delivered as part of the promoted development to manage flood risk and surface water drainage. It is requested that the score for flood risk is changed to ‘amber’ It is agreed that the promoted development will need to protect the character of the village. The existing trees and hedgerows at the site boundaries would be retained and enhanced as part of the promoted development. The promoted development would include landscape screening at the northern boundary to mitigate the impact on landscape character as recommended in the assessment.

No answer given

No

The site has access to all key utilities and facilities including sewage, electricity and broadband. The site is not crossed by any pipelines or pylons.

Available now

The site is currently farmed in hand by the family and could be made available for development within 12 months.

None

Proximity to centre of village and railway station with links to Cambridge and London.

The land is unrestricted.

Never previously considered.

2021

2024

3

No

N/A

Yes